Herrington Homes Serenity Home Plan
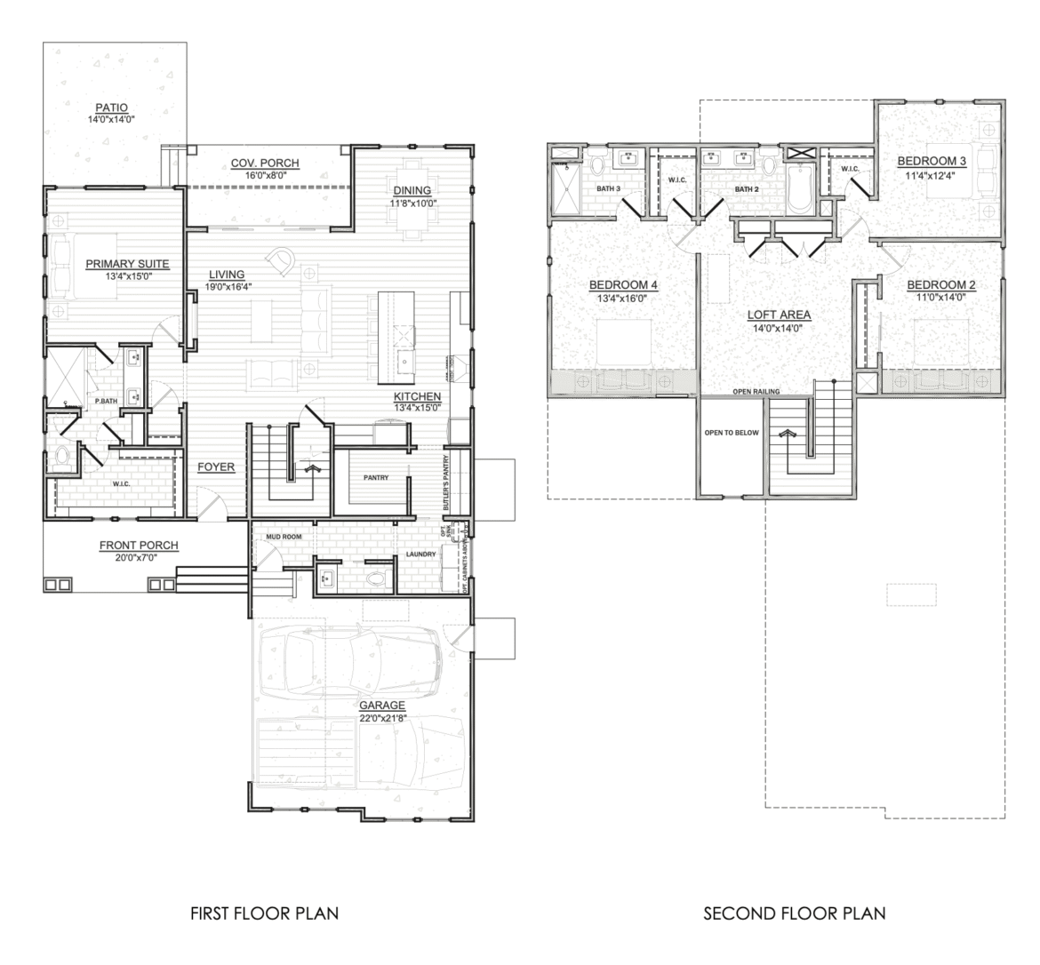
The Serenity by Herrington Homes offers 4 bedrooms, 3.5 baths, and 2,526 square feet of well-designed living space with a layout that feels open, comfortable, and easy to live in.
The main level features an open kitchen, dining, and living area that flows to a covered porch and patio, making it ideal for everyday living and entertaining. A first-floor primary suite provides privacy and convenience, along with a walk-in closet and spacious bath. Practical touches like a walk-in pantry, optional butler’s pantry, mudroom, and nearby laundry add everyday functionality.
Upstairs, three additional bedrooms, two full baths, and a versatile loft offer flexible space for guests, work, or relaxation. Thoughtful details and a welcoming front porch complete this modern coastal home at Sunset Reach.

Contact Tracel Wilt and start your custom home today!
910-821-3510
Tracel@Thirty4North.com
1110 Rockhill Rd
Castle Hayne, NC 28429

"*" indicates required fields
